Soms heb je van die dagen waarop je denkt: “Dit wordt een rustige ochtend.” Tot er ineens een vraag binnenkomt die je met een frons naar je scherm doet kijken. Zo’n vraag kreeg Sam onlangs. Als BAG-beheerder bij gemeente Meerdijk is die wel wat gewend, maar deze casus was nét een tikkeltje anders. Niet spectaculair, geen bouwput of enorme verbouwing, maar precies zo’n voorbeeld waar theorie en praktijk elkaar niet altijd vanzelf vinden.
De vraag
De vraag begon vrij neutraal:
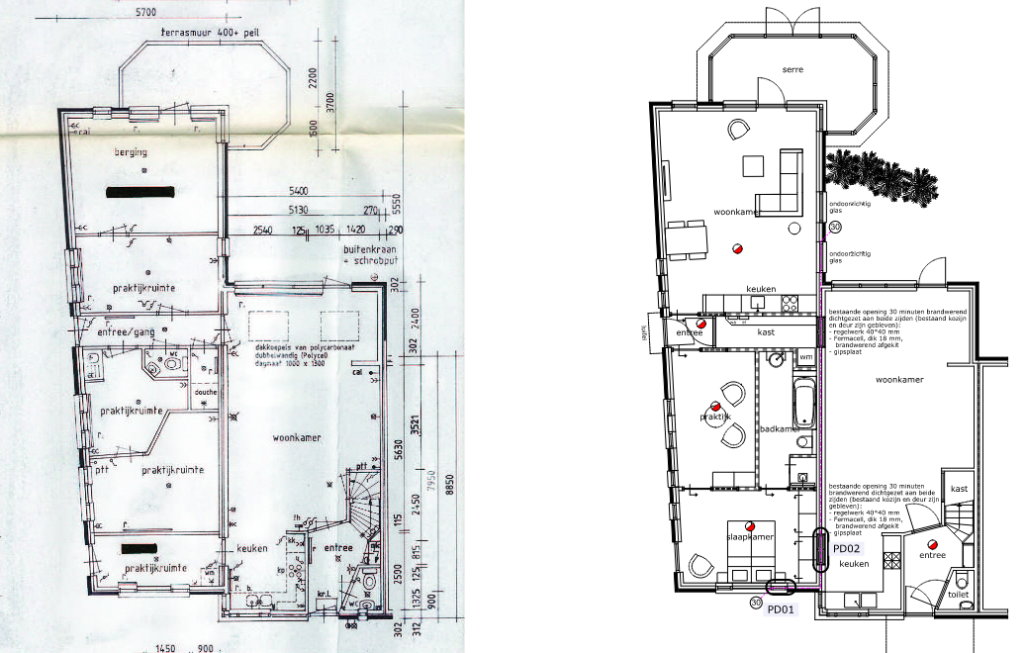
“Ik heb een pand (van vóór de BAG) waarin eerder een woning en een kantoorruimte zaten. Het was één pand, met doorgangen/deuren, maar dus wel twee verblijfsobjecten (VBO’s). Nu worden de ruimten bouwkundig van elkaar gescheiden, met brandscheidende wanden rondom de deuren. Er ontstaan nu dus twee losse eenheden, die los van elkaar blijven staan. Moet ik het pand nu ook splitsen in twee panden? Het voelt alsof het nu écht twee aparte bouwwerken zijn. Alleen… dit staat niet in de praktijkhandleiding.”
Een begrijpelijke vraag, vond Sam. Sterker nog: een herkenbare. Vooral bij oudere gebouwen zie je vaker dat de indeling en het gebruik in de loop der jaren veranderen. En soms komt er dan een moment waarop iemand denkt: “Moet dit nu niet anders in de registratie?”
De zoektocht naar het juiste antwoord
Sam pakte er zoals altijd de BAG-praktijkhandleiding bij – maar Sam bleef in dit geval opvallend stil. Geen direct voorbeeld, geen kant-en-klare richtlijn. Toch wist die: het antwoord ligt niet in wat er níét staat, maar in wat we wél zeker weten. Sam keek naar de tekeningen, bekeek de situatie, en concludeerde:“Panden worden niet gesplitst. Ook niet in deze situatie. Door een verbouwing zou je het technisch gezien kunnen afbakenen als twee panden, maar dat doen we niet.”
En waarom niet?
“Splitsen van panden doen we alleen als er écht fysiek een stuk tussenuit valt – als je bijvoorbeeld letterlijk een deel van het gebouw sloopt, waardoor twee losse bouwdelen ontstaan.”
Maar Sam was ook eerlijk: “Als ik naar de tekening kijk, zou je zelfs kunnen zeggen dat het eigenlijk vóór de verbouwing al twee panden hadden moeten zijn. Ze zijn bouwkundig zelfstandig, hebben een eigen functie, zijn afsluitbaar… Maar ja, dat is achteraf. En verbouwen alleen is geen reden om in de BAG twee panden te maken.”
Wat nemen we hieruit mee?
Deze casus laat mooi zien hoe belangrijk het is om niet alleen naar de verbouwing te kijken, maar ook naar hoe een pand oorspronkelijk gebouwd én gebruikt is.
-Een verbouwing verandert de registratie niet automatisch.
-Pandsplitsing gebeurt alleen bij echte, fysieke scheiding.
-En nee, niet elk uitzonderlijk geval vraagt om een nieuwe richtlijn in de praktijkhandleiding.
Heb jij ook zo’n twijfelgeval?
Werk je ook met de BAG en kom je weleens zo’n grijs gebied tegen? Een situatie waarin je denkt: “Hmm… dit past net niet in het boekje.”
Deel ’m met ons! Misschien duiken we er wel samen in – en wie weet wordt het een volgende blog of een waardevolle aanvulling voor je collega’s in het veld.

